Chủ đầu tư: Mr. Vũ
Địa chỉ: Đường Bình Lợi, Quận Bình Thạnh TP. HCM
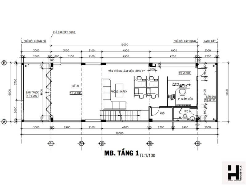
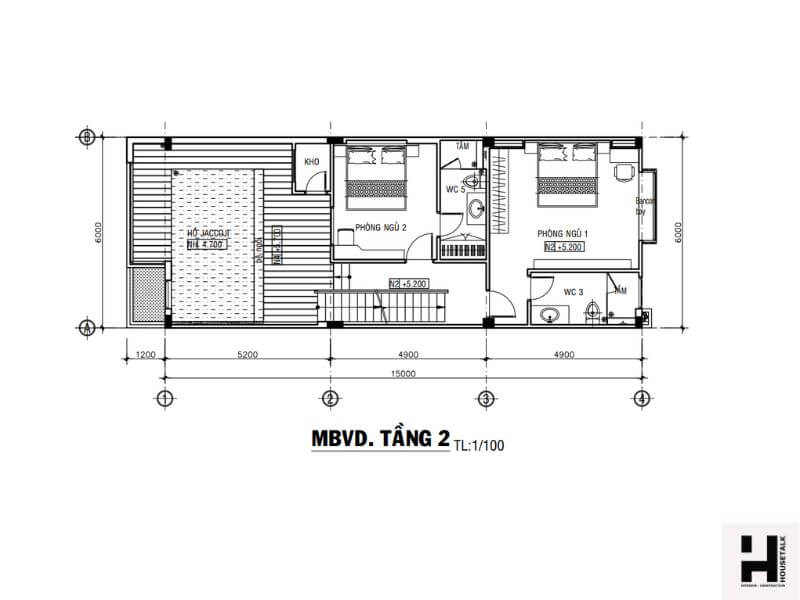
Loại Công trình: Nhà phố
Phong cách: Hiện đại
Diện tích sàn: 570m2. Gồm 5 tầng
Hình thức thi công: Thi công trọn gói, chìa khóa trao tay






Xem thêm:
10 chất vàng HOUSETALK
- Giá rẻ hơn 30% so với thị trường nhờ trực tiếp sản xuất
- Chất lượng cao cấp với nguồn nguyên liệu tuyển chọn
- Sản phẩm tinh tế, sắc nét
- Sáng tạo đỉnh cao, tối ưu công năng sử dụng
- Tiến độ nhanh, chính xác, đúng hẹn
- Chăm sóc khách hàng tận tâm, chuyên nghiệp
- Tư vấn chuyên sâu với đội kiến trúc sư dạn dày kinh nghiệm
- Bảo hành 1 năm, bảo trì trọn đời
- Miễn phí thiết kế, free thi công khi đặt đóng nội thất
- Giảm tiếp 10% khi khách hàng đặt mua lần 2
















